Skip to content
Back to Development Enquire Now
Back to Development

£579,995

The Stratton II

A 5 bedroom detached home with an integral double garage and garden room, offering generous space for family living. Elegant design and flexible interiors make it a home of style and comfort.

5 Beds
1 Plot
1917 sqft

Wentworth View off Upper Wortley Road, Thorpe Hesley, Rotherham, South Yorkshire, S61 2FL

Friday 10:00 - 17:00
Saturday 11:00 - 17:00
Sunday 11:00 - 17:00
Monday 10:00 - 17:00
Tuesday Closed
Wednesday Closed
Development Location What 3 Words 01709 264 831
Download brochure

The Stratton II

01709 264 831
Friday 10:00 - 17:00
Saturday 11:00 - 17:00
Sunday 11:00 - 17:00
Monday 10:00 - 17:00
Tuesday Closed
Wednesday Closed

Explore

The Stratton II

The Stratton II is an impressive five bedroom detached home with integral double garage.

The ground floor offers an elegant lounge, spacious open-plan kitchen, family and dining space which leads through to the garden room with bi-fold doors to the rear garden. A practical utility off the kitchen and WC cloakroom complete the ground floor.

Floor Plans

Dimensions*

  • Living Room 5.10m x 3.63m (16'9" x 11'11")
  • Kitchen/Family/Dining 10.82m x 3.53m (35'6" x 11'7")
  • Garden Room 3.69m x 3.14m (12'1" x 10'4")
  • Double Garage 5.20m x 5.89m (17'1" x 19'4")
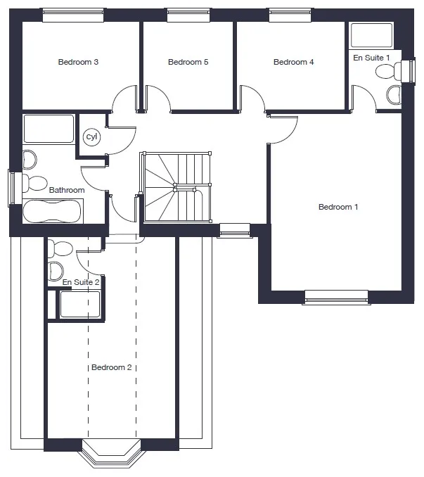
  • Bedroom 1 4.99m x 3.63m (16'4" x 11'11")
  • Bedroom 2 5.83m x 3.75m (19'2" x 12'4")
  • Bedroom 3 3.43m x 2.48m (11'3" x 8'2")
  • Bedroom 4 3.03m x 2.48m (9'11" x 8'2")
  • Bedroom 5 2.56m x 2.48m (8'5" x 8'2")

*--- Restricted ceiling height. These floor plans are for guidance and illustrative purposes only and do not form part of any contract. All room sizes are approximate to maximum dimensions and some plots may be subject to additional gable or bay windows.

Available homes

Availability:
Bedrooms:

Plot 8

The Stratton II

£579,995

5 bedroom detached home with garden room and integral double garage

  • Upgraded kitchen
  • Quartz worktops
  • Flooring included*
  • Upgraded tiling included
  • Upgraded kitchen
  • Quartz worktops
  • Flooring included*
  • Upgraded tiling included

Site Plan

Close Site Plan

Home Styles Key

Easily find your dream house style by using the below filters

  • The Bentley

    4 bedroom detached home with integral single garage

  • The Thornton - Starter Home

    3 bedroom semi-detached home with private driveway

  • The Birch

    3 bedroom semi-detached home with two parking spaces

  • The Birch - Starter Home

    3 bedroom home with two parking spaces

  • The Davenham

    4 bedroom detached home with integral single garage

  • The Banbury

    4 bedroom detached home with integral single garage

  • The Bowdon

    5 bedroom detached home with garden room and detached double garage

  • The Stratton II

    5 bedroom detached home with garden room and integral double garage

  • The Latchford II

    5 bedroom detached home with garden room and integral double garage

This home is not currently released for sale

But by clicking “Notify Me” you will ensure you are amongst the first to know as soon as it becomes available.

*These details are prepared for the guidance of prospective purchasers and do not form part of any contract, purchasers are required to rely on deed plans for full boundary details. Jones Homes reserve the right to vary details and specification from time to time as may be necessary. + Starter Homes - New homes available at discounted price - Ask Sales Advisor for details. * Affordable Homes - Ask Sales Advisor for details.

Use the filter to narrow down your search and click the plots to view more information about that home.

*These details are prepared for the guidance of prospective purchasers and do not form part of any contract, purchasers are required to rely on deed plans for full boundary details. Jones Homes reserve the right to vary details and specification from time to time as may be necessary. + Starter Homes - New homes available at discounted price - Ask Sales Advisor for details. * Affordable Homes - Ask Sales Advisor for details.

Explore Our

Show Homes

Step inside and experience the quality and craftsmanship of a Jones home for yourself. The fully furnished Show Homes at our developments provide a clear, practical view of the layouts, specifications and considered details you can expect.

Thoughtfully designed and finished to a high standard, each of our homes offers a real sense of space and modern living, helping you visualise a lifestyle where you can simply move in and start living.

View the Show Homes that are available for viewing at Wentworth View today. To make the most of your visit, why not learn what to look for during your visit, in our helpful guide.