Skip to content
Back to Development Enquire Now
Back to Development

£475,995

The Bentley

The Bentley is a 4 bedroom detached home with integral single garage, blending classic design with modern style.

4 Beds
1 Plot
1619 sqft

Teasel Green off Weeland Road, Eggborough, Selby, North Yorkshire, DN14 0SA

Friday 10:00 - 17:00
Saturday 11:00 - 17:00
Sunday 11:00 - 17:00
Monday 10:00 - 17:00
Tuesday Closed
Wednesday Closed
Development Location What 3 Words 01977 238 460
Download brochure

The Bentley

01977 238 460
Friday 10:00 - 17:00
Saturday 11:00 - 17:00
Sunday 11:00 - 17:00
Monday 10:00 - 17:00
Tuesday Closed
Wednesday Closed

Explore

The Bentley

The Bentley is a spacious 4 bedroom detached home, combining classic design with modern family living. The versatile living room, complete with bay window, is the perfect spot to host guests or enjoy quiet evenings. At the heart of the home is a generous kitchen, dining and family space, with bi fold doors opening onto the garden and a separate utility room for added practicality. On the ground floor of the home you will discover ample storage, with designated storage space under the stairs and in the kitchen, dining and family room.

Upstairs, a central landing leads to 4 well-proportioned bedrooms. The main bedroom includes a private en-suite, creating a restful retreat, while a beautifully finished family bathroom serves the additional 3 bedrooms. The Bentley is a classic, high-specification home, thoughtfully designed for today's lifestyle.

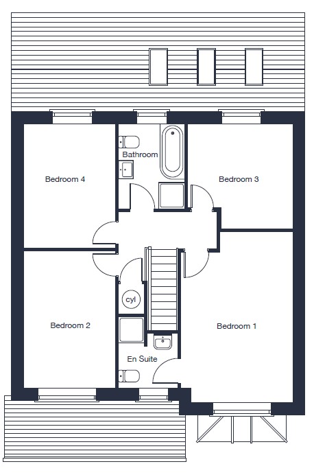
Floor Plans

Dimensions*

  • Living Room 6.15m x 3.34m (20'2" x 10'11")
  • Kitchen/Family/Dining 8.20m x 5.94m (26'11" x 19'6")
  • Garage 5.36m x 2.66m (17'7" x 8'9")
  • Bedroom 1 5.20m x 3.40m (17'1" x 11'2")
  • Bedroom 2 4.15m x 2.79m (13'8" x 9'2")
  • Bedroom 3 3.19m x 3.18m (10'6" x 10'5")
  • Bedroom 4 3.80m x 2.79m (12'6" x 9'2")

*These floor plans are for guidance and illustrative purposes only and do not form part of any contract. All room sizes are approximate to maximum dimensions and some plots may be subject to additional gable or bay windows.

Available homes

Availability:
Bedrooms:
  • Single garage
  • Corner plot
  • Incentives available

Site Plan

Close Site Plan

Home Styles Key

Easily find your dream house style by using the below filters

  • The Baycliffe I - Village Home

    3 bedroom semi-detached home with two parking spaces

  • The Baycliffe II - Village Home

    3 bedroom semi-detached home with two parking spaces

  • The Baycliffe I

    3 bedroom semi-detached home with two parking spaces

  • The Baycliffe II

    3 bedroom semi-detached home with two parking spaces

  • The Bayswater

    4 bedroom detached home with detached single garage

  • The Bentley

    4 bedroom detached home with integral single garage

  • The Barbridge

    4 bedroom detached home with garden room and detached garage

  • The Stratton II

    5 bedroom detached home with integral double garage

  • The Latchford II

    5 bedroom detached home with integral double garage

This home is not currently released for sale

But by clicking “Notify Me” you will ensure you are amongst the first to know as soon as it becomes available.

*- - - Access to potential future development, PS Pumping Station. These details are prepared for the guidance of prospective purchasers and do not form any part of any contract. Furthermore Jones Homes reserves the right to vary details from time to time as may be necessary.

Use the filter to narrow down your search and click the plots to view more information about that home.

*- - - Access to potential future development, PS Pumping Station. These details are prepared for the guidance of prospective purchasers and do not form any part of any contract. Furthermore Jones Homes reserves the right to vary details from time to time as may be necessary.

Explore Our

Show Homes

Step inside and experience the quality and craftsmanship of a Jones home for yourself. The fully furnished Show Homes at our developments provide a clear, practical view of the layouts, specifications and considered details you can expect.

Thoughtfully designed and finished to a high standard, each of our homes offers a real sense of space and modern living, helping you visualise a lifestyle where you can simply move in and start living.

View the Show Homes that are available for viewing at Teasel Green today. To make the most of your visit, why not learn what to look for during your visit, in our helpful guide.