Skip to content
Back to Development Enquire Now
Back to Development

From £455,995

The Bentley

A 4 bedroom detached home with integral single garage, blending classic design with modern style. The bay-windowed living room and generous family areas provide comfort and elegance.

4 Beds
3 Plots
1619 sqft

Lambcote Meadows off Grange Lane, Maltby, Rotherham, South Yorkshire, S66 7DN

Friday 10:00 - 17:00
Saturday 11:00 - 17:00
Sunday 11:00 - 17:00
Monday 10:00 - 17:00
Tuesday 10:00 - 17:00
Wednesday 10:00 - 17:00
Development Location What 3 Words 01709 264 325
Download brochure

The Bentley

01709 264 325
Friday 10:00 - 17:00
Saturday 11:00 - 17:00
Sunday 11:00 - 17:00
Monday 10:00 - 17:00
Tuesday 10:00 - 17:00
Wednesday 10:00 - 17:00

Explore

The Bentley

The Bentley is a spacious 4 bedroom detached home, combining classic design with modern family living. The versatile living room, complete with bay window, is the perfect spot to host guests or enjoy quiet evenings. At the heart of the home is a generous kitchen, dining and family space, with bi fold doors opening onto the garden and a separate utility room for added practicality. On the ground floor of the home you will discover ample storage, with designated storage space under the stairs and in the kitchen, dining and family room.

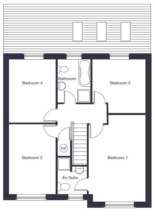
Upstairs, a central landing leads to 4 well-proportioned bedrooms. The main bedroom includes a private en-suite, creating a restful retreat, while a beautifully finished family bathroom serves the additional 3 bedrooms. The Bentley is a classic, high-specification home, thoughtfully designed for today's lifestyle.

Floor Plans

Dimensions*

  • Living Room 6.15m x 3.34m (20'2" x 10'11")
  • Kitchen/Family/Dining 8.20m x 5.94m (26'11" x 19'6")
  • Garage 5.26m x 2.66m (17'3" x 8'9")
  • Bedroom 1 5.20m x 3.40m (17'1" x 11'2")
  • Bedroom 2 4.15m x 2.79m (13'8" x 9'2")
  • Bedroom 3 3.19m x 3.18m (10'6" x 10'5")
  • Bedroom 4 3.79m x 2.79m (12'6" x 9'2")

**- - - Skylights. These floor plans and images are for guidance and illustrative purposes only and do not form part of any contract. All room sizes are approximate to maximum dimensions and some plots may be subject to additional gable or bay windows.

Available homes

Availability:
Bedrooms:

Site Plan

Close Site Plan

Home Styles Key

Easily find your dream house style by using the below filters

  • The Birch - Starter Home

    3 bedroom semi-detached home with two parking spaces

  • The Birch

    3 bedroom semi-detached home with two parking spaces

  • The Baycliffe II

    3 bedroom semi-detached home with two parking spaces

  • The Baycliffe I

    3 bedroom semi-detached home with two parking spaces

  • The Banbury

    4 bedroom detached home with integral single garage

  • The Bayswater

    4 bedroom detached home with detached garage

  • The Barbridge

    4 bedroom detached home with garden room and detached garage

  • The Bentley

    4 bedroom detached home with integral single garage

  • The Stratton II

    5 bedroom detached home with integral double garage

This home is not currently released for sale

But by clicking “Notify Me” you will ensure you are amongst the first to know as soon as it becomes available.

***Management access only. †Starter Homes - New homes available at discounted price. Ask Sales Advisor for details. These details are prepared for the guidance of prospective purchasers and do not form part of any contract. Furthermore Jones Homes reserve the right to vary details from time to time as may be necessary.

Use the filter to narrow down your search and click the plots to view more information about that home.

***Management access only. †Starter Homes - New homes available at discounted price. Ask Sales Advisor for details. These details are prepared for the guidance of prospective purchasers and do not form part of any contract. Furthermore Jones Homes reserve the right to vary details from time to time as may be necessary.

Explore Our

Show Homes

Step inside and experience the quality and craftsmanship of a Jones home for yourself. The fully furnished Show Homes at our developments provide a clear, practical view of the layouts, specifications and considered details you can expect.

Thoughtfully designed and finished to a high standard, each of our homes offers a real sense of space and modern living, helping you visualise a lifestyle where you can simply move in and start living.

View the Show Homes that are available for viewing at Lambcote Meadows today. To make the most of your visit, why not learn what to look for during your visit, in our helpful guide.